전기/전기기사 실기

[전기기사 실기 계산 06] UPS 축전지 계산

엔지니어관리자 2024. 8. 23. 22:56

 

 

전기기사 실기에서 출제되는 계산 문제 중 축전지 관련된 문제를 정리해보려고 합니다.

 

문제는 2008~2022년의 15개년 문제이며, 출제된 횟수를 특수문자 ★ 로 표현하되, 최대 3번까지 적용합니다.

 

 

목차

    축전지 기본 수식

    축전지 용량

     

    충전기 2차 전류

     

    축전지별 정격 방전율

    • 연축전지 방전율 : 10 시간
    • 알칼리축전지 방전율 : 5시간

     

    축전지 계산

    문제 1) 축전지의 정격용량 200 [Ah], 상시부하 10 [kW], 표준전압 100 [V]인 부동 충전 방식의 2차 충전 전류값은 얼마인지 계산하시오. (, 연축전지의 방전율은 10시간, 알칼리축전지는 5시간으로 한다.)

    (1) 연축전지

     

     

     

    (2) 알칼리축전지

     

    문제 2) 연축전지의 정격 용량 100 [Ah], 상시 부하 5 [kW], 표준전압 100 [V]인 부동 충전 방식이 있다. 이 부동 충전 방식의 충전기 2차 전류는 몇 [A]인가?

     

    참고
    ◆ 충전기 2차 전류



    ◆ 축전지별 정격 방전율
        연축전지 : 10 [h]

     

     

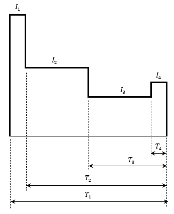
    문제 3) 축전지 설비의 부하 특성 곡선이 그림과 같을 때 주어진 조건을 이용하여 필요한 축전지의 용량을 산정하시오. (, K1=1.45, K2=0.69, K3=0.25이고, 보수율은 0.8이다.)

     

     

     

    문제 4) 예비전원으로 이용되는 축전지에 대한 다음 각 물음에 답하시오.

    (1) 그림과 같은 부하 특성을 갖는 축전지를 사용할 때 보수율이 0.8, 최저 축전지 온도가 5 [℃], 허용 최저 전압이 90 [V] 일 때 몇 [Ah] 이상인 축전지를 선정하여야 하는가? (, K1=1.5, K2=0.91이고, 셀당 전압은 1.06 [V/cell]이다.)

     

    (2)   축전지의 과방전 및 방치 상태, 가벼운 설페이션 현상 등이 생겼을 때, 기능 회복을 위하여 실시하는 충전 방식은 무엇인가?

    회복 충전 방식

    (3)   연축전지와 알칼리 축전지의 공칭 전압은 각각 몇 [V]인가?

    • 연축전지 : 2.0 [V]
    • 알칼리 축전지 : 1.2 [V]

    (4)   축전지 설비를 하려고 한다. 그 구성요소를 크게 4가지로 구분하시오.

    • 축전지
    • 제어장치
    • 보안장치
    • 충전장치

     

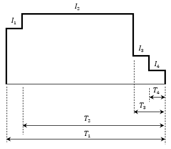
    문제 5) 그림과 같은 방전 특성을 갖는 부하에 대한 축전지 용량[Ah]을 구하시오. (, 방전 전류 I1=500 [A], I2=300 [A], I3=100 [A], I4=200 [A], 방전시간 T1=120 [분]. T2=119.9 [분], T3=60 [분], T4=1 [분], 용량 환산 시간 계수 K1=2.49, K2=2.49, K3=1.46, K4=0.57, 보수율은 0.8을 적용한다.)

     

     

     

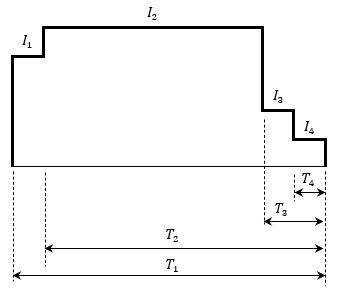
    문제 6) 그림과 같은 방전 특성을 갖는 부하에 필요한 축전지 용량[Ah]을 구하시오. (, 방전 전류 I1=200 [A], I2=300 [A], I3=150 [A], I4=100 [A], 방전시간 T1=130 [분], T2=120 [분], T3=40 [분], T4=5 [분], 용량 환산 시간 계수 K1=2.45, K2=2.45, K3=1.46, K4=0.45, 보수율은 0.7을 적용한다.)

     

     

     

    문제 7) 비상용 조명 부하 110 [V]용 100 [W] 77, 60 [W] 55등이 있다. 방전 시간 30, 축전지 HS형 54 [cell], 허용 최저 전압 100 [V], 최저 축전지 온도 5 [℃] 일 때 축전지 용량은 몇 [Ah]인지 계산하시오. (, 경년 용량 저하율 0.8, 용량 환산 시간 계수 K=1.2이다.)

     

     

    문제 8) 알칼리 축전지의 정격 용량이 100 [Ah]이고, 상시 부하가 5 [kW], 표준 전압이 100 [V]인 부동 충전 방식이 있다. 이 부동 충전 방식에서 다음 각 물음에 답하시오.

    (1)   부동 충전 방식의 충전기 2차 전류는 몇 [A]인지 계산하시오.

     

    (2) 부동 충전 방식의 회로도를 전원, 축전지, 부하, 충전기(정류기) 등을 이용하여 간단히 답란에 그리시오. (, 심벌은 일반적인 심벌로 표현하되 심벌 부근에 심벌에 따른 명칭을 쓰도록 하시오.)

     

     

    축전지별 정격 방전율
        - 연 축전지 : 10 [h]
        - 알칼리 축전지 : 5 [h]

     

    문제 8) 다음 각 물음에 답하시오.

    (1)   묽은 황산의 농도는 표준이고 액면이 저하하여 극판이 노출되어 있다. 어떤 조치를 하여야 하는가?

    증류수를 보충한다.

    (2)   축전지의 과방전 및 방치 상태, 가벼운 Sulfation(설페이션) 현상 등이 생겼을 때 기능 회복을 위해 실시하는 충전 방식은?

    회복충전

    (3)   알칼리 축전지의 공칭 전압은 몇 [V]인가?

    1.2 [V]

    (4)   부하의 허용 최저 전압이 115 [V]이고, 축전지와 부하 사이의 전압 강하가 5 [V] 일 경우 직렬로 접속한 축전지 개수가 55개라면 축전지 한 셀당 허용 최저 전압은 몇 [V]인가?

     

     

    참고

     [전기기사 실기] 단답형 총정리_전원설비

     

    [전기기사 실기] 단답형 총정리_전원설비

    전기기사 실기 단답형을 2001~2023년의 23개년 문제를 정리해보려고 합니다. 아래와 같이 임의로 분류하고, 출제된 횟수는 ★ 로 표현하되, 최대 3번까지 적용합니다.전기설비설계 & 도면수변전설

    engineer-ing.tistory.com

    UPS Battery 용량 계산 (무보수 밀폐형)

     

    UPS Battery 용량 계산 (무보수 밀폐형)

    UPS Battery 용량 계산은 UPS 용량, 축전지 셀 수량, 축전지 용량, K-Factor 등에 의해 계산할 수 있다. 목차1. 일반UPS(무정전전원장치) 배터리 계산은 시스템의 전력 요구량, 예상 사용 시간, 백업 필요

    engineer-ing.tistory.com